contattaci

0421.972392

DEAL REAL ESTATE SRL
Via Aquileia, 157/B - Jesolo
info@immobiliaredealteriis.it

Ricerca

Villette a schiera in Vendita a Jesolo

Zona: Piazza Mazzini

175 mq 5 Locali 3 Camere 2 Bagni

Classe energetica

A4

  EP glnr: 19.00 kwh/m²

Codice: JO998 € 610.000

ULTIMA UNITA'
per te che stai cercando la tua casa a Jesolo con spazi adeguati a poterla vivere non solo nel periodo estivo, questa potrebbe essere la soluzione ideale.
L'unità immobiliare è ubicata in via Lombardia, in una zona oggetto di una recentissima lottizzazione, che dista 500 mt da piazza Mazzini ed è costituita da recenti costruzioni ad altezza massima di soli due piani con ampi spazi esterni.
La porzione di bivilla in Vendita, è composte da un giardino con pompeiana e pavimentazione in betonelle per l'area parcheggio e pavimento in teak o similari per camminamenti e area piscina.
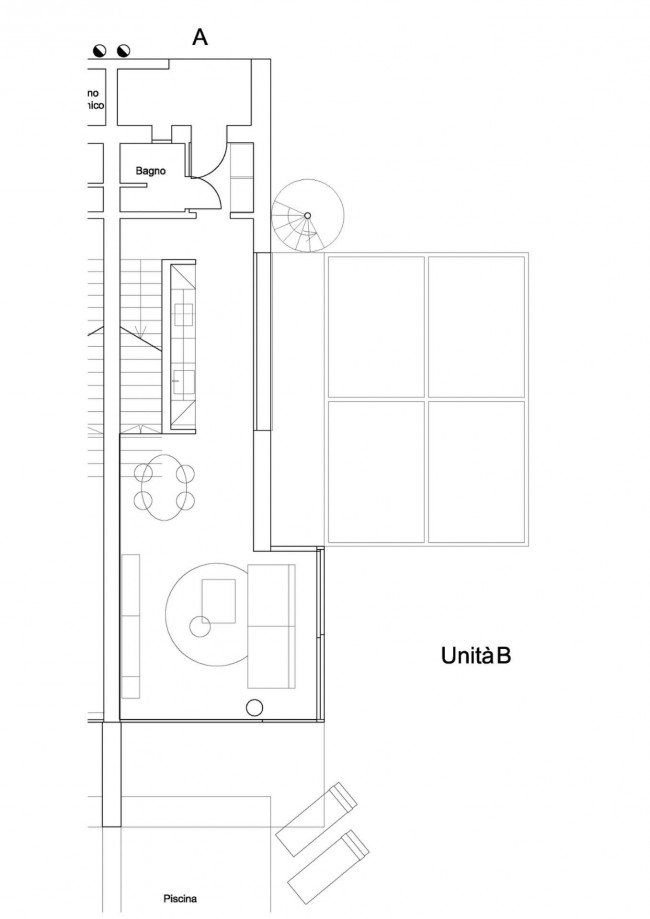
Dal cancello pedonale si arriva al portoncino di ingresso indipendente. Dall' ingresso si accede all'immobile attraverso un disimpegno prima e un passaggio dove trova posto una cucina, per arrivare poi all'area soggiorno/pranzo, con ampie vetrate e con vista direttamente sulla piscina esterna. Al piano terra troviamo anche un wc
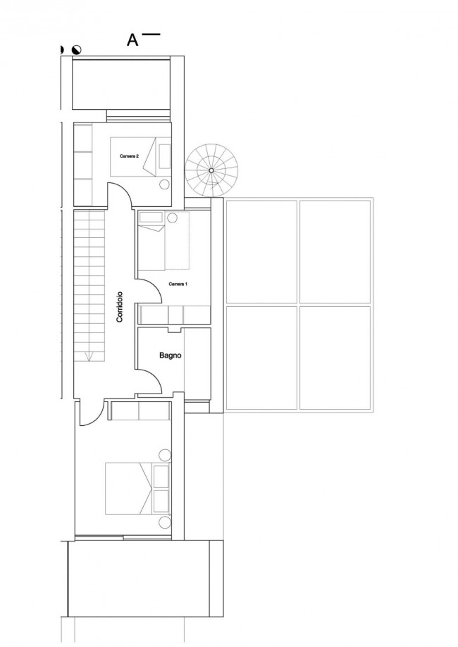
Attraverso la scala interna rivestita di marmo, cosi come la pavimentazione del piano terra, si accede alla zona notte, composta da un corridoio, 3 camere da letto ed un bagno con doccia.
Una scala esterna circolare, conduce al terrazzo di copertura dove troviamo una pompeiana progettata per l'alloggiamento dei pannelli fotovoltaici, e una parte di terrazza scoperta
Le unità sono finite con materiali di pregio, come la pavimentazione in marmo del piano terra e della scala interna e i listoni in legno della zona notte, il mosaico dei bagni.
L'impianto elettrico in domotico e il riscaldamento tradizionale, l'impianto antri-intrusione, le ampie vetrate del piano terra, il fotovoltaico già installato sul terrazzo di copertura.
Piscina privata
L'arredamento è al solo scopo illustrativo e non è incluso nel prezzo di Vendita

Informazioni immobile
Codice: JO998
Contratto: Vendita
Tipologia: Villette a schiera
Regione: Veneto
Provincia: Venezia
Comune: Jesolo
Zona: Piazza Mazzini
Prezzo: € 610.000
Totale mq: 175 mq
Camere: 3
Bagni: 2
Locali: 5
Stato conservazione: Buono
Piano: Su due livelli
Piani totali: 2
Riscaldamento: Autonomo
Appartamenti Totali: 1
Età costruzione: 2012
Stato attuale: Libero al rogito
Disponibile: Si
Distanza mare: 700 mt.
Arredato: Non arredato
Posizione: Turistica
Caratteristiche
ABBIAMO PLANIMETRIA
Aria Condizionata

Contattaci

DEAL REAL ESTATE SRL

Via Aquileia 157/b
Jesolo (VE)
Telefono 0421972392
info@immobiliaredealteriis.it

Antonio De Alteriis

Telefono 0421972392
Fax 0421370681
Cellulare 3335976158
info@immobiliaredealteriis.it

* Autorizzo il trattamento dei miei dati personali ai sensi dell'attuale normativa privacy e confermo di aver preso visione dell'informativa.

I campi contrassegnati con * sono obbligatori!

Ultimo aggiornamento 17-10-2025